Rozšířené hledání} Informace o členství Kontaktní informace Seznam uživatelů Kalendář Spřátelené weby Honda-club.cz Přihlásit se k emailu
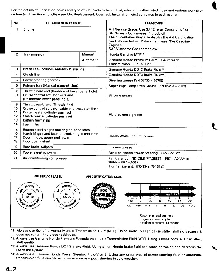
[2]
Linka Uživatelské skupiny Linka Galerie avatarů Linka Kdo je online Linka
Linka Jak se stát členem klubu Linka Stáhnout stanovy sdružení Linka Výhody pro členy klubu Linka
  Obsah fóra Honda-club.cz   
Olej do integry je 5w30!!
Fórum: Motor, ECU, spojka a převodovka
0
Pomohlo ti toto téma?   
Zobrazit příspěvky z předchozích:
 Řadit příspěvky dle: 
Jdi na stránku 1, 2  Další 
Zaslat odpověď



  Strana 1 z 2
Marfi je teď offline  Marfi
4 háčka
Členství: Žádné
0
PříspěvekZaslal: 28.2.2008 , 13:42   Citovat  

Tak sem volal na technické oddělení do zastoupení honda čr a do integry se má dávat 5w30 tak kdo by jste ho chtěl tak mám možnost sehnat castrol txt 5w30 5litru za 1200kč OK
   Pomohl ti příspěvěk? Návrat  
    
Zobrazit informace o autorovi Osobní garáž Odeslat soukromou zprávu
Příspěvky: 4774 H+ body: 0 2002 Civic Type-R  
Doomm je teď offline  Doomm
4 háčka
0
PříspěvekZaslal: 28.2.2008 , 14:14   Citovat  

nevim nevim to se mi nejak nezda ta hodnota 30 ... integra toci 9000? nebo ne? to se ten olej musi pri sprintech, na okruhu,sprtovni jizde uz snad prepalovat ... nebo ma integra olejovej chladic?
   Pomohl ti příspěvěk? Návrat  
    
Zobrazit informace o autorovi Osobní garáž Odeslat soukromou zprávu
Příspěvky: 2410 H+ body: 0 1998 Civic  
Bitkar je teď offline  Bitkar
4 háčka
Členství: Žádné
0
PříspěvekZaslal: 28.2.2008 , 14:19   Citovat  

no ja osobne bych mrknul do origo manualu, voni toho lidi nekdy nakecaj, japonsky panove urco vedej lip. Jinak ja bych jim ani snad neveril, stejnak bych tam frknul 10w-40. krom toho v manualu bude vic udaju nez jeden, ja tam mam moznosti...
   Pomohl ti příspěvěk? Návrat  
    
Zobrazit informace o autorovi Osobní garáž Odeslat soukromou zprávu
Příspěvky: 4870 H+ body: 0 1997 Civic Vti  
665+1 je teď offline  665+1
Administrátor
Členství: Žádné
0
PříspěvekZaslal: 28.2.2008 , 14:27   Citovat  

Doomm napsal:
nevim nevim to se mi nejak nezda ta hodnota 30 ... integra toci 9000? nebo ne? to se ten olej musi pri sprintech, na okruhu,sprtovni jizde uz snad prepalovat ... nebo ma integra olejovej chladic?


jak si prišel na přepalovaní, to už tady bylo propíraný mockrat

první číslo je viskozita pří 0C
druhý číslo je viskozita při 100C

dovolim si vypujčit text z oleje.cz

Nápad je tu! Viskozita v praxi

Zařazování oleje do viskózní třídy SAE a ISO-VG je prováděno na základě měření viskozity u nového, nepoužitého oleje. Avšak již několik desítek hodin provozu může změnit viskozitu použitého oleje. Olej může intenzívním mícháním snížit svoji viskozitu nebo vlivem oxidace svoji viskozitu zvýšit. Změna viskozity může být i tak významná, že se olej dostane do jiné viskózní třídy SAE nebo ISO-VG. To může mít velice nepříznivý dopad na trvanlivost zařízení, které je olejem mazáno.

Bez ohledu na to, jaký olej používáte, je ideální viskozita ta, která zabezpečí ideální mazání, minimální opotřebení a spotřebu síly na překonání viskozity maziva. Je určena kombinací:

a) Teploty
b) Zatížení
c) Rychlosti


Pokud dojde ke změně některého z těchto parametrů, mazání již není ideální.

tudy a) Vliv teploty na výběr viskozity

Výběr vhodné viskozity oleje závisí na jeho provozní teplotě. Čím je provozní teplota vyšší, tím vyšší musí být viskozita použitého oleje (jinak by došlo k neúměrnému ztenčení mazacího filmu a zhoršení mazání). Proto musí být například jednorozsahový olej SAE 30 nahrazen olejem SAE 20 pokud dojde ke snížení provozní teploty a naopak SAE 40 nebo SAE 50 pokud dojde ke zvýšení provozní teploty.

tudy b) Vliv zatížení na výběr viskozity

Vhodná viskozita oleje závistí na zatížení oleje. Čím je zatížení vyšší, tím je vyžadována vyšší viskozita oleje (vyšší viskózní třída ). Proto může být pro motor, pro který je předepsán normálně olej SAE 30 v režimu vysokého zatížení použit olej SAE 40 nebo SAE 50.

tudy c) Vliv rychlosti na výběr viskozity

Se vzrůstající rychlostí vzájemného pohybu mazaných ploch se olej dostává obtížněji do mazacího prostoru a je z něj rychleji vytlačován. Čím je vzájemná rychlost pohybujících se ploch vyšší, tím musí být viskozita použitého oleje nižší. Proto například vysokootáčkové motory a převodovky vyžadují oleje s nižší viskozitou než nízkootáčkové.

Vlivy změny teploty, zatížení a rychlosti se mohou někdy kompenzovat. Zvýšení zatížení motoru může být kompenzováno zvýšením otáček motoru. Například při jízdě do kopce (vzrůst zatížení - nutná vyšší viskozita) je zařazen nižší rychlostní stupeň čímž dojde ke zvýšení otáček motoru (vzrůst rychlosti - nutná nižší viskozita). Nejvhodnější viskozita zůstává v tomto případě nezměněna a je jakýmsi kompromisem.

Některé oleje s vysokým viskozitním indexem (vícerozsahové oleje u kterých se změnou teploty dochází pouze k malé změně viskozity) dokáží zabezpečit dobré mazání i při větším rozsahu změn teploty, zatížení a rychlosti a proto jsou univerzálnější a mohou být využívány ve větším množství aplikací.
   Pomohl ti příspěvěk? Návrat  
    
Zobrazit informace o autorovi Osobní garáž Odeslat soukromou zprávu
Příspěvky: 5903 H+ body: 1 2000 Accord Type-R  
PreludeZ je teď offline  PreludeZ
Administrátor
Členství: Žádné
0
PříspěvekZaslal: 28.2.2008 , 14:54   Citovat  

Bitkar napsal:
no ja osobne bych mrknul do origo manualu, voni toho lidi nekdy nakecaj, japonsky panove urco vedej lip. Jinak ja bych jim ani snad neveril, stejnak bych tam frknul 10w-40. krom toho v manualu bude vic udaju nez jeden, ja tam mam moznosti...

a koukal ses do manuálu ITR? já jo


Capture28-02-2008-13.49.51.jpg

Zobrazení obrázku v plné velikosti.
Capture28-02-2008-13.49.51.jpg, 204.66 kB

Capture28-02-2008-13.50.09.jpg

Zobrazení obrázku v plné velikosti.
Capture28-02-2008-13.50.09.jpg, 138.41 kB
   Pomohl ti příspěvěk? Návrat  
    
Zobrazit informace o autorovi Osobní garáž Odeslat soukromou zprávu
Příspěvky: 4971 H+ body: 31 1995 Prelude VTEC  
kamol je teď offline  kamol
5 háček
0
PříspěvekZaslal: 28.2.2008 , 14:59   Citovat  

PreludeZ napsal:
a koukal ses do manuálu ITR? já jo



to stejne je v civicu napsane a taky sem tam nalil 5w40
   Pomohl ti příspěvěk? Návrat  
    
Zobrazit informace o autorovi Osobní garáž Odeslat soukromou zprávu
Příspěvky: 5161 H+ body: 0 1996 Civic Vti  
Bitkar je teď offline  Bitkar
4 háčka
Členství: Žádné
0
PříspěvekZaslal: 28.2.2008 , 15:05   Citovat  

Edo: nekoukal, tak to je mazec, ze by se ty motory tak lisily? tak to je pak asi jasny no... jen nevim jestli to teda pocita s letnima teplotama pres 30C a ostrou jizdou ve vysokych otackach. Ale kdyz to tam pisou, ze xw-30....
   Pomohl ti příspěvěk? Návrat  
    
Zobrazit informace o autorovi Osobní garáž Odeslat soukromou zprávu
Příspěvky: 4870 H+ body: 0 1997 Civic Vti  
Weyraak je teď offline  Weyraak
1 háčko
0
PříspěvekZaslal: 28.2.2008 , 15:06   Citovat  

Nechci spammovat, ale jen čistě pro zajímavost má Celica 2.0 3S-GE také předepsaný olej 10W30... Zpočátku jsem se divil (bylo to na šťítku o výměnách oleje, tak jsem se na to ještě zeptal v Toyotě a ono fakticky ano Úsměv ) přátele Přitom by člověk, čekal podle charakteristik motoru něco jiného...
   Pomohl ti příspěvěk? Návrat  
    
Zobrazit informace o autorovi  Odeslat soukromou zprávu
Příspěvky: 391 H+ body: 0  
PreludeZ je teď offline  PreludeZ
Administrátor
Členství: Žádné
0
PříspěvekZaslal: 28.2.2008 , 15:24   Citovat  

koukali jste se na ty obrázky co jsem sem vložil? tam je i to do jakých venkovních teplot je ten olej určenej, podívejte se znova. Úsměv

to číslo 30 neznamená že to je jen do 30°C venku. To číslo nemá s teplotou venku nic společného, určuje to viskozitu při 100°C. Je to lehkoběžný olej se sníženou HTHS viskozitou. Všechny moderní auta které snižují spotřebu a prodlužují výměnné intervaly používáním lehkoběžných olejů používají 0W30 nebo 5W30 a jezdí normálně tady v čr, o tom jste nikdy neslyšeli?


Capture28-02-2008-13.50.09.jpg

Zobrazení obrázku v plné velikosti.
Capture28-02-2008-13.50.09.jpg, 106.64 kB
   Pomohl ti příspěvěk? Návrat  
    
Zobrazit informace o autorovi Osobní garáž Odeslat soukromou zprávu
Příspěvky: 4971 H+ body: 31 1995 Prelude VTEC  
kamol je teď offline  kamol
5 háček
0
PříspěvekZaslal: 28.2.2008 , 15:29   Citovat  

PreludeZ napsal:
koukali jste se na ty obrázky co jsem sem vložil? tam je i to do jakých venkovních teplot je ten olej určenej, podívejte se znova. Úsměv

to číslo 30 neznamená že to je jen do 30°C venku. To číslo nemá s teplotou venku nic společného, určuje to viskozitu při 100°C. Je to lehkoběžný olej se sníženou HTHS viskozitou. Všechny moderní auta které snižují spotřebu a prodlužují výměnné intervaly používáním lehkoběžných olejů používají 0W30 nebo 5W30 a jezdí normálně tady v čr, o tom jste nikdy neslyšeli?


taky je tam napsane ze ma vzdy pouzivat DOT3 brzdovou kapalinu a kazdy mu tady doporucil DOT4
   Pomohl ti příspěvěk? Návrat  
    
Zobrazit informace o autorovi Osobní garáž Odeslat soukromou zprávu
Příspěvky: 5161 H+ body: 0 1996 Civic Vti  
Marfi je teď offline  Marfi
4 háčka
Členství: Žádné
0
PříspěvekZaslal: 28.2.2008 , 15:30   Citovat  

to by mě zajímalo kdo má v itr tenhle olej asi jenom já HaHaaa Velmi šťastný
   Pomohl ti příspěvěk? Návrat  
    
Zobrazit informace o autorovi Osobní garáž Odeslat soukromou zprávu
Příspěvky: 4774 H+ body: 0 2002 Civic Type-R  
PreludeZ je teď offline  PreludeZ
Administrátor
Členství: Žádné
0
PříspěvekZaslal: 28.2.2008 , 15:42   Citovat  

kamol napsal:
taky je tam napsane ze ma vzdy pouzivat DOT3 brzdovou kapalinu a kazdy mu tady doporucil DOT4

a co?
tady v tom manuálu od integry je DOT3 i DOT4...


Capture28-02-2008-14.40.56.jpg

Zobrazení obrázku v plné velikosti.
Capture28-02-2008-14.40.56.jpg, 142.14 kB
   Pomohl ti příspěvěk? Návrat  
    
Zobrazit informace o autorovi Osobní garáž Odeslat soukromou zprávu
Příspěvky: 4971 H+ body: 31 1995 Prelude VTEC  
kamol je teď offline  kamol
5 háček
0
PříspěvekZaslal: 28.2.2008 , 15:50   Citovat  

PreludeZ napsal:
a co?
tady v tom manuálu od integry je DOT3 i DOT4...




no tady je dot 3 or dot 4 tak nevim kazdy manual jiny.jako na vicku od brzdovky je stejne napsane co lze pouzit jakou kapalinu teda ja to tak mam na civicu.jak na nadobce od brzdovky je dot4 tak i na spojkove nadobce je dot3 nebo dot4.
   Pomohl ti příspěvěk? Návrat  
    
Zobrazit informace o autorovi Osobní garáž Odeslat soukromou zprávu
Příspěvky: 5161 H+ body: 0 1996 Civic Vti  
PreludeZ je teď offline  PreludeZ
Administrátor
Členství: Žádné
0
PříspěvekZaslal: 28.2.2008 , 15:55   Citovat  

kamol napsal:
no tady je dot 3 or dot 4 tak nevim kazdy manual jiny.jako na vicku od brzdovky je stejne napsane co lze pouzit jakou kapalinu teda ja to tak mam na civicu.jak na nadobce od brzdovky je dot4 tak i na spojkove nadobce je dot3 nebo dot4.

no však jo a to je taky správně ne? DOT3 a DOT4 jsou záměnné, takže tu není o čem debatit přátele
   Pomohl ti příspěvěk? Návrat  
    
Zobrazit informace o autorovi Osobní garáž Odeslat soukromou zprávu
Příspěvky: 4971 H+ body: 31 1995 Prelude VTEC  
Marfi je teď offline  Marfi
4 háčka
Členství: Žádné
0
PříspěvekZaslal: 28.2.2008 , 15:55   Citovat  

tak dot3 a dot 4 je minimalní rozdíl ne?hlavní je že to tam leju dobře.ale kdyby tam byl olej třeba 5w40 tak se taky prd stane ne?
   Pomohl ti příspěvěk? Návrat  
    
Zobrazit informace o autorovi Osobní garáž Odeslat soukromou zprávu
Příspěvky: 4774 H+ body: 0 2002 Civic Type-R  
kamol je teď offline  kamol
5 háček
0
PříspěvekZaslal: 28.2.2008 , 15:57   Citovat  

PreludeZ napsal:
no však jo a to je taky správně ne? DOT3 a DOT4 jsou záměnné, takže tu není o čem debatit přátele



jj vsak v pohode ja tu nebudu debatit ty tu jsi pres tu technickou stranku kouř ja sem jenom cumel na to ze tam je bylo napsane v tom jednou always geniune honda dot 3
   Pomohl ti příspěvěk? Návrat  
    
Zobrazit informace o autorovi Osobní garáž Odeslat soukromou zprávu
Příspěvky: 5161 H+ body: 0 1996 Civic Vti  
kamol je teď offline  kamol
5 háček
0
PříspěvekZaslal: 28.2.2008 , 15:58   Citovat  

Marfi napsal:
tak dot3 a dot 4 je minimalní rozdíl ne?hlavní je že to tam leju dobře.ale kdyby tam byl olej třeba 5w40 tak se taky prd stane ne?



ja si myslim ze se nic nestane a normalne muzes pouzit olej 5w40 pokud splnuje specifikace co udava vyrobce.
   Pomohl ti příspěvěk? Návrat  
    
Zobrazit informace o autorovi Osobní garáž Odeslat soukromou zprávu
Příspěvky: 5161 H+ body: 0 1996 Civic Vti  
paTRick je teď offline  paTRick
0
PříspěvekZaslal: 28.2.2008 , 16:03   Citovat  

Ja do mojej davam 5w50 predsa len to je stary motor tak si myslim ze mu to padne lepsie...Vsetky tie hodnoty su predsa len udavane na novy motor...Ci myslite ze sa tomu moze nieco stat???
   Pomohl ti příspěvěk? Návrat  
    
Zobrazit informace o autorovi Osobní garáž Odeslat soukromou zprávu
Příspěvky: 46 H+ body: 0 1998 Integra Type-R  
Bitkar je teď offline  Bitkar
4 háčka
Členství: Žádné
0
PříspěvekZaslal: 28.2.2008 , 16:20   Citovat  

edo: jo pri sto sputnich viskozitu, ale kdyz zenes auto v 8000 otacek a ve stinu je 35C a na slunci a od rozpaleny silnice jeste vic, tak je v motoru, obzvlast na nekterych mistech v motoru ten olej kapanek hodne horkej, o hodne vic nez 100C. je to tak nebo sem mimo?
   Pomohl ti příspěvěk? Návrat  
    
Zobrazit informace o autorovi Osobní garáž Odeslat soukromou zprávu
Příspěvky: 4870 H+ body: 0 1997 Civic Vti  
infinity je teď offline  infinity
Partner H-C
Členství: Gold
0
PříspěvekZaslal: 28.2.2008 , 16:23  Naposledy upravil infinity dne 14.3.2009 , 15:37, celkově upraveno 2 krát. Citovat  

ja mam 5w40 plnou synt od motulu a pohoda Úsměv
   Pomohl ti příspěvěk? Návrat  
    
Zobrazit informace o autorovi Osobní garáž Odeslat soukromou zprávu
Příspěvky: 4584 H+ body: 12 1998 Integra Type-R  
PreludeZ je teď offline  PreludeZ
Administrátor
Členství: Žádné
0
PříspěvekZaslal: 28.2.2008 , 16:38   Citovat  

Bitkar napsal:
edo: jo pri sto sputnich viskozitu, ale kdyz zenes auto v 8000 otacek a ve stinu je 35C a na slunci a od rozpaleny silnice jeste vic, tak je v motoru, obzvlast na nekterych mistech v motoru ten olej kapanek hodne horkej, o hodne vic nez 100C. je to tak nebo sem mimo?

já teď nechápu na co se ptáš...
ano v motoru jsou místa kde má olej vyšší teplotu než 100°C, no a co? to nema s viskozitní třídou SAE 30 nebo jakoukoliv jinou vůbec co dělat. To číslo určuje VISKOZITU PŘI 100°C, nic jiného s teplotou než to že měření probíhá při XX stupních to nemá společného, je to o viskozitě, ne o teplotě...

krom toho to důležité už sem napsal 665+1 předtím...

665+1 napsal:
c) Vliv rychlosti na výběr viskozity

Se vzrůstající rychlostí vzájemného pohybu mazaných ploch se olej dostává obtížněji do mazacího prostoru a je z něj rychleji vytlačován. Čím je vzájemná rychlost pohybujících se ploch vyšší, tím musí být viskozita použitého oleje nižší. Proto například vysokootáčkové motory a převodovky vyžadují oleje s nižší viskozitou než nízkootáčkové.
   Pomohl ti příspěvěk? Návrat  
    
Zobrazit informace o autorovi Osobní garáž Odeslat soukromou zprávu
Příspěvky: 4971 H+ body: 31 1995 Prelude VTEC  
Bitkar je teď offline  Bitkar
4 háčka
Členství: Žádné
0
PříspěvekZaslal: 28.2.2008 , 17:35   Citovat  

dovysvetlim myslenku... u 30 kdyz bude pri sto stupnich vizkozita nejaka, tak pri 200 stupnich bude mensi... u treba 60 bude pri sto stupnich mensi (bude to hustsi) nez u 30 ale kdyz se ohreje na 200 stupnu, tak bude rozdil jeste vetsi nez 30. Nebude 30 pri extremni zatezi tak ridka ze uz bude spatne mazat?? zatimco treba 50ka jeste bude natolik viskozni ze bude mazat v pohode..? Nebo ta viskozita u vsech trid roste linearne? takze rozdil viskozity (treba mezi 30 a 60) je stejnej ve vsech teplotach?
   Pomohl ti příspěvěk? Návrat  
    
Zobrazit informace o autorovi Osobní garáž Odeslat soukromou zprávu
Příspěvky: 4870 H+ body: 0 1997 Civic Vti  
Marfi je teď offline  Marfi
4 háčka
Členství: Žádné
0
PříspěvekZaslal: 28.2.2008 , 17:37   Citovat  

no jo ale zase ta 50 je tak husta ze za studena nemaže tak jako 30 to mi hlava nebere
   Pomohl ti příspěvěk? Návrat  
    
Zobrazit informace o autorovi Osobní garáž Odeslat soukromou zprávu
Příspěvky: 4774 H+ body: 0 2002 Civic Type-R  
MalTake je teď offline  MalTake
4 háčka
Členství: Žádné
0
PříspěvekZaslal: 28.2.2008 , 17:39   Citovat  

tak dejte 40 a je to Velmi šťastný
   Pomohl ti příspěvěk? Návrat  
    
Zobrazit informace o autorovi Osobní garáž Odeslat soukromou zprávu
Příspěvky: 2872 H+ body: 0 1991 CR-X  
PAKO je teď offline  PAKO
5 háček
0
PříspěvekZaslal: 28.2.2008 , 17:40   Citovat  

já nedám dopustit na oil od firmy Hellenick Fine Oils,dávám ho do všeho top je Kreolis EPOO
   Pomohl ti příspěvěk? Návrat  
    
Zobrazit informace o autorovi Osobní garáž Odeslat soukromou zprávu
Příspěvky: 6138 H+ body: 0 1978 110R coupé  
petrveit je teď offline  petrveit
0
PříspěvekZaslal: 28.2.2008 , 17:46   Citovat  

infinity napsal:
ja mam 5w30 plnou synt od motulu a pohoda Úsměv

Motul je zcela jina liga s mimoradne vysokym HTHS...schvaluju Cool
   Pomohl ti příspěvěk? Návrat  
    
Zobrazit informace o autorovi  Odeslat soukromou zprávu
Příspěvky: 77 H+ body: 0  
posero je teď offline  posero
5 háček
0
PříspěvekZaslal: 28.2.2008 , 17:51   Citovat  

petrveit napsal:
Motul je zcela jina liga s mimoradne vysokym HTHS...schvaluju Cool

sem rad ze sem pro svoje auti zvolil dobrej olej Mrk
   Pomohl ti příspěvěk? Návrat  
    
Zobrazit informace o autorovi  Odeslat soukromou zprávu
Příspěvky: 8464 H+ body: 14  
665+1 je teď offline  665+1
Administrátor
Členství: Žádné
0
PříspěvekZaslal: 28.2.2008 , 17:57   Citovat  

petrveit napsal:
Motul je zcela jina liga s mimoradne vysokym HTHS...schvaluju Cool


taky do ATR a CTR lejem Motul 300v 5w40

a když je barel, tak cenově vychazí kolem 300kč OK

   Pomohl ti příspěvěk? Návrat  
    
Zobrazit informace o autorovi Osobní garáž Odeslat soukromou zprávu
Příspěvky: 5903 H+ body: 1 2000 Accord Type-R  
MalTake je teď offline  MalTake
4 háčka
Členství: Žádné
0
PříspěvekZaslal: 28.2.2008 , 18:32   Citovat  

poraďte co mam lejt do svýho vraku Velmi šťastný CRXII 1991 229000 km Je to tam.
   Pomohl ti příspěvěk? Návrat  
    
Zobrazit informace o autorovi Osobní garáž Odeslat soukromou zprávu
Příspěvky: 2872 H+ body: 0 1991 CR-X  
Marfi je teď offline  Marfi
4 háčka
Členství: Žádné
0
PříspěvekZaslal: 28.2.2008 , 18:46   Citovat  

MalTake napsal:
poraďte co mam lejt do svýho vraku Velmi šťastný CRXII 1991 229000 km Je to tam.


zkus třeba olej Je to tam.
   Pomohl ti příspěvěk? Návrat  
    
Zobrazit informace o autorovi Osobní garáž Odeslat soukromou zprávu
Příspěvky: 4774 H+ body: 0 2002 Civic Type-R  

  Obsah fóra Honda-club.cz   
Olej do integry je 5w30!!
Fórum: Motor, ECU, spojka a převodovka
0
Pomohlo ti toto téma?   
Zobrazit příspěvky z předchozích:
 Řadit příspěvky dle: 
Jdi na stránku 1, 2  Další 
Zaslat odpověď



 Časy uváděny v GMT + 1 hodina  
    
Nemůžete odesílat nové téma do tohoto fóra.
Nemůžete odpovídat na témata v tomto fóru.
Nemůžete upravovat své příspěvky v tomto fóru.
Nemůžete mazat své příspěvky v tomto fóru.
Nemůžete hlasovat v tomto fóru.
Můžete k příspěvkům připojovat soubory
Můžete stahovat a prohlížet přiložené soubory
Nemůžete moderovat Vaše témata v tomto fóru.



Board Security

(104575 útoků)
::  www.honda-club.cz  :: Témata RSS TOPlist

[ Čas: 0.2321s ][ Dotazy: 147 (0.0247s) ][ GZIP on - Debug on ]